Owner vacated - wants all offers

Fabulous size and great value

Reap the rewards of this home with a 5KW solar power system on the roof plus solar hot water system and enjoy the fully ducted air conditioning throughout.

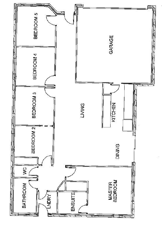
This low set brick home offers all the extras a large family could want. Featuring Five bedrooms all with built in robes, the king size master Bedroom has a spacious Ensuite.

The well thought out Kitchen accommodates all your needs and has plenty of storage space with fabulous draw space. This space is allowing the whole family to cook together, this is the perfect kitchen to work in with everything at your fingertips. This area also has access from the garage to bring your groceries straight into the pantry and the entertaining area leads off the kitchen dining area. The lounge and large dining area can cater for oversized furniture.

The property has all tinted windows and security screens and doors. There is a 5m x 2m shed in the back yard plus plenty of room for a pool. The yard is fully fenced with excellent fencing for your children and pets to feel secure. There is gates on the side to allow access for trailer.

The garage has been fitted with Air-con and fully lined to cater for another fabulous living area. This area also has good storage and cupboard space. There is cement paths around the home and an excellent size covered outdoor area for entertaining. The home is walking distance to the train station for those that need to commute to work and a short drive to Brassall shopping complex and West Moreton Anglican College. This home is a must to inspect as it has all the extras for a fabulous price. Call today to arrange time to view this home.

 

This information has been provided to us by thrid parties and we do not accept any responsibility for its accuracy.  You should make your own enquiries and check the information so as to determine whether or not this information is in fact accurate.  You must make your own assessment and obtain professional advice if necessary.

 

5 2 2
Address 18 Comona Ct, Wulkuraka
Price SOLD
Property Type Residential
Property ID 1325
Category House

Agent Details

Bronwyn Handley photo

Bronwyn Handley

0421 926 276
View Profile