Leased

Small Office Option

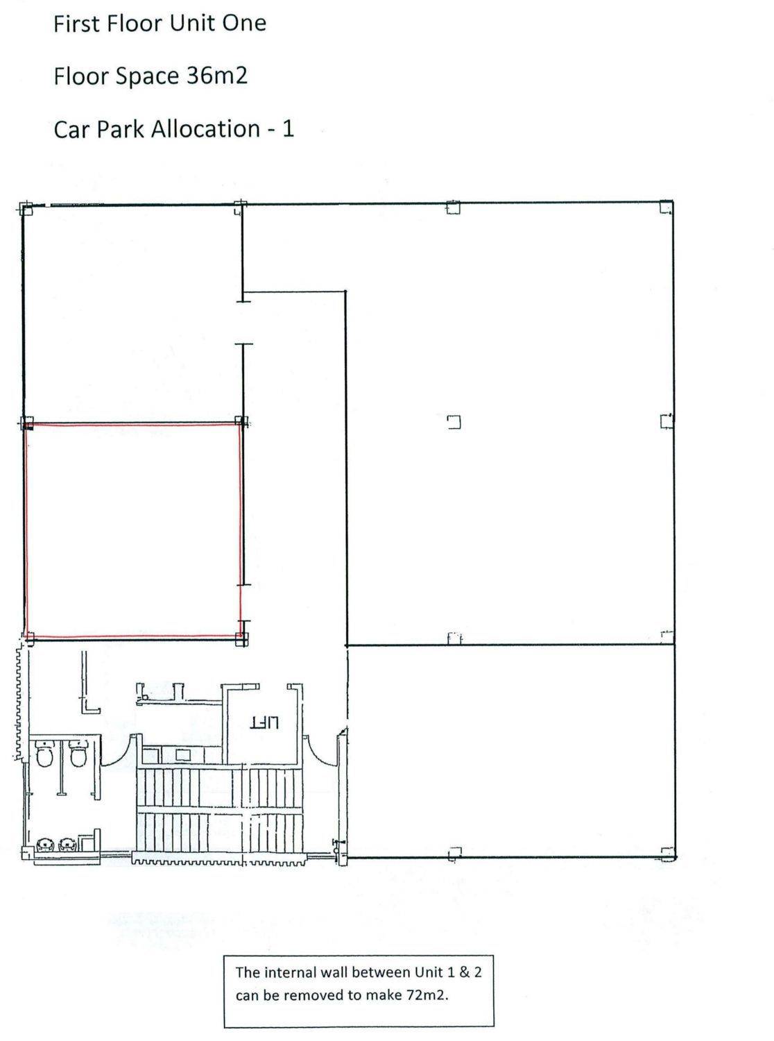
~ 36*m2 site; Level 1 of 6
~ Reception area; 2 x offices
~ Kitchenette
~ 300*m to all public transport
~ Fully ducted air con
~ Onsite car parking included

This well laid out compact office space is very user friendly and offers the ideal opportunity for someone who wants to move their office from home to a more professional location. It is very affordable and well presented.

$10,800* Gross PA + GST (including electricity) = $900*per Month Gross + GST

*Approximately
1
Suburb Ipswich
Price $10,800* Gross PA + GST (incl Elec)
Property Type Commercial
Property ID 458
Category Offices, Medical/Consulting, Retail
Office Area 36m2
Floor Area 36 m2

Agent Details

Bronwyn Handley photo

Bronwyn Handley

0421 926 276
View Profile