Leased

West Ipswich Industrial Tilt Slab Unit

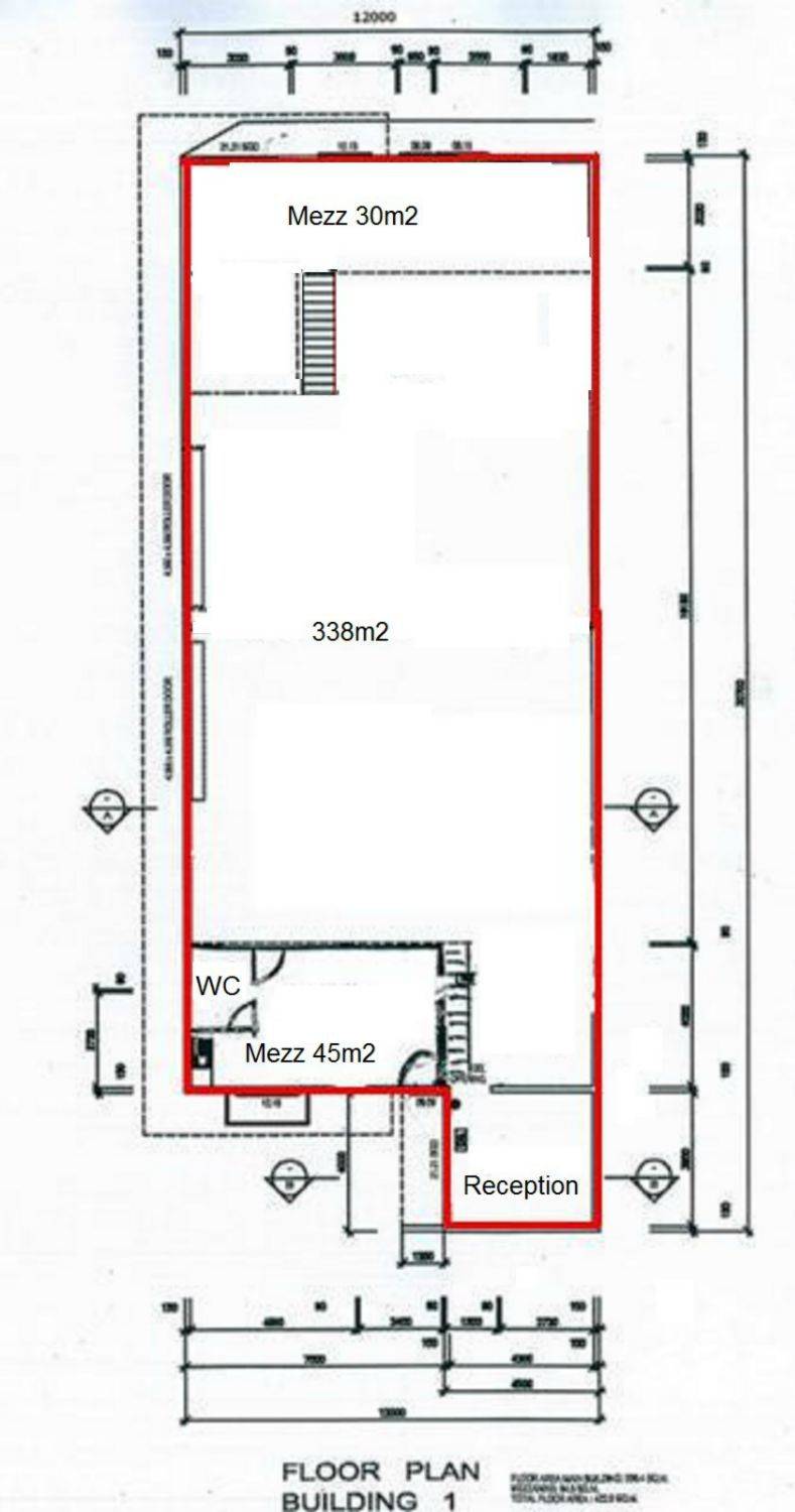
- 338*m2 tilt slab + 75*m2 mezz
- Street Front Unit
- Reception/showroom Area
- 3 Phase power
- 4.5*m x 4.5*m High roller door
- 5.5 - 5.7 metre internal height
- Onsite car parking
- 1.5*km to Ipswich CBD
- Exclusive onsite amenities
- 600*m to the new Bunnings Trade Centre
- Shed internal height 5.5*m - 5.7*m
Tilt slab construction with excellent exposure, open plan design and situated in an easy to find location. There are 2 sheds in this complex with a motor mechanic as the other business already operating from this site. The property is vacant and available for immediate occupancy.
Call today to book an inspection.

Kathleen Campbell
0438 160 030

$33,800*PA + GST + Outgoings ($4,000)
$2,816.66* Per Month + GST + Outgoings
$650* Per Week + GST + Outgoings
*Approximately*
Suburb West Ipswich
Price $33,800 + GST + Outgoings ($4,000)
Property Type Commercial
Property ID 947
Category Offices
Floor Area 338 m2

Agent Details

Bronwyn Handley photo

Bronwyn Handley

0421 926 276
View Profile